BACK TO RESIDENCES

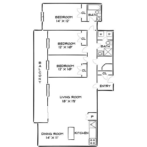
Design 3A

Diagram
Vista - Philadelphia, PA - Floor plan diagram
Vista - Philadelphia, PA - living room

One clear price that includes all required monthly fees—no fine print, no surprises.

Available Units